

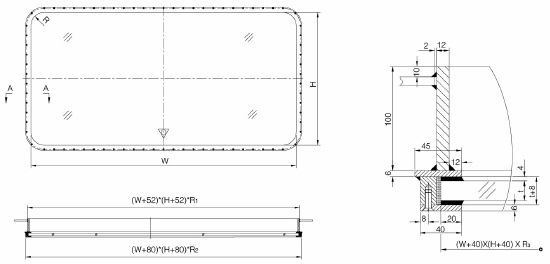
| No. |
Norminal Size WxHxR |
Cutout in steel wall (W+52)x(H+52)xR1 |
External Size (W+52)x(H+52)xR2 |
Glass outline side(mm) (W+40)x(H+40)xR3 |
Glass thickness (E type) |
Glass thickness (F type) |
| 1 | 355x500 | 407x552 | 435x580 | 390x540 | 10 | 8 |
| 2 | 400x560 | 452x612 | 480x640 | 440x600 | 10 | 8 |
| 3 | 450x630 | 502x682 | 530x710 | 490x670 | 10 | 8 |
| 4 | 900x630 | 952x682 | 980x710 | 940x670 | 12 | 10 |
| 5 | 1000x710 | 1052x762 | 1080x790 | 1040x750 | 12 | 10 |
| 6 | 1200x800 | 1252x852 | 1280x880 | 1240x840 | 15 | 12 |
| 7 | 1400x900 | 1452x952 | 1480x980 | 1440x940 | 15 | 12 |
| 8 | 1600x900 | 1652x952 | 1680x1080 | 1640x940 | 19 | 15 |
| 9 | 1800x1000 | 1852x1052 | 1880x1080 | 1840x1040 | 19 | 15 |
| 10 | 2000x1000 | 2052x1052 | 2080x1080 | 2040x1040 | 19 | 15 |
